about this project
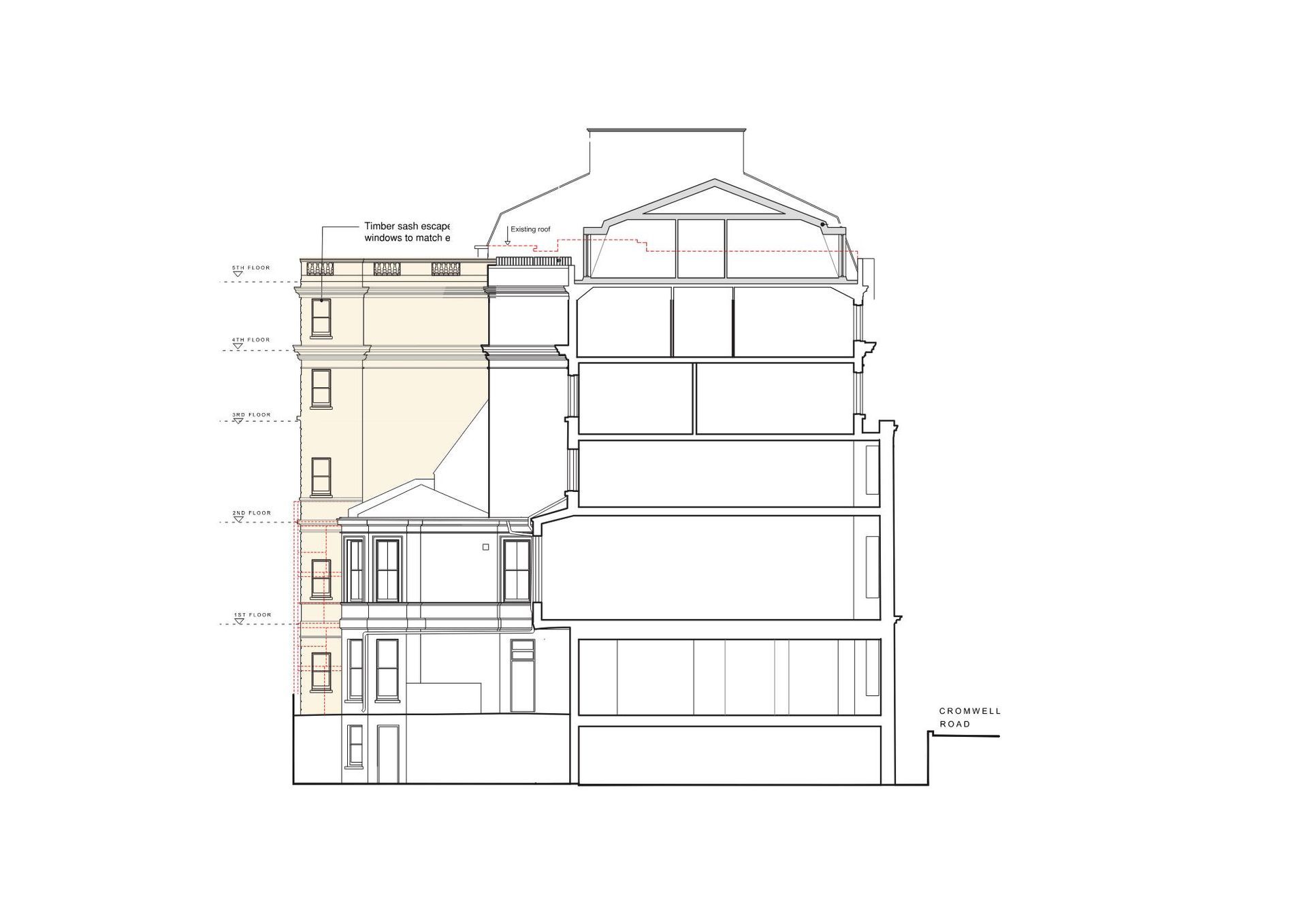
Gloucester Road, South Kensington
This project, located in the heart of South Kensington, London, involves the addition of a new mansard roof to an existing 6-storey building, covering approximately 225 square meters. The roof will be constructed using a combination of steel frame and timber.
Additionally, three new floors are proposed on the side of the property, complete with new access stairs connecting the ground to the fifth floor. A key challenge in this project is carefully assessing the loads to ensure the existing foundations can support the new structures without being overloaded.
Architectural Elevation credit:
Stamos Yeoh architects






